
船舶生活污水处理装置原理 船舶生活污水处理设备操作说明 ,对于想学习百科知识的朋友们来说,船舶生活污水处理装置原理 船舶生活污水处理设备操作说明是一个非常想了解的问题,下面小编就带领大家看看这个问题。
船舶生活污水处理装置是船舶环保工程中不可或缺的一部分,其原理主要基于物理、化学及生物处理技术的综合运用。装置首先通过格栅拦截大颗粒杂质,然后通过物理沉淀、生物氧化等过程,对生活污水进行初步处理。接着,利用化学沉淀、消毒等手段,进一步去除有害物质和病原菌,最终实现污水的无害化处理。

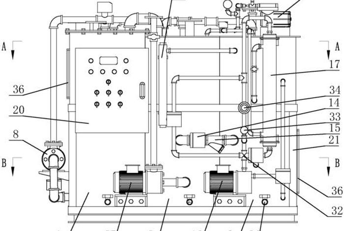
启动前需检查设备电源、进出水阀门等是否正常。按启动按钮后,设备开始工作。关闭时,先关闭进水阀门,再按停止按钮。
巡检时需注意设备运行状态、进出水水质等指标是否正常。如有异常,应及时处理并记录。

将生活污水引入设备前,需经过初步处理。设备处理后的清水,应按规定排放,并定期进行排放口的清洗。
根据处理需要,定期向设备内添加化学药剂,如絮凝剂、消毒剂等。添加后需充分混合,确保消毒效果。
定期对设备进行维护保养,如清洗格栅、清理沉淀物、检查管道等。保持设备良好运行状态。

如遇设备故障,应立即停止使用,进行排查。常见故障包括电源问题、进水阀门故障、处理效果不佳等。根据具体情况进行处理。
操作过程中需注意安全防护,如佩戴防护服、避免接触有毒有害物质等。要确保设备运行环境的安全。
以上就是关于船舶生活污水处理装置原理及设备操作说明的介绍。通过了解这些知识,我们可以更好地保护海洋环境,实现船舶的绿色、环保运行。
以上是关于船舶生活污水处理装置原理 船舶生活污水处理设备操作说明的介绍,希望对想学习百科知识的朋友们有所帮助。
本文标题:船舶生活污水处理装置原理 船舶生活污水处理设备操作说明;本文链接:http://yszs.weipeng.cchttp://yszs.weipeng.cc/sh/641499.html。